



















■產品用途
標稱放電電流為60kA及以上的防雷箱適用于重要場所的總電源防雷保護;標稱放電電流為20~40kA的防雷箱適用于各種電源系統(如UPS電源、機房電源等)的防雷保護;標稱放電電流為10kA的防雷箱適用于各種設備電源的防雷保護;C+D、B+C電源防雷箱適用于要求有低限制電壓的電源系統的防雷保護。該產品廣泛用于移動通信基站、微波通信局/站、電信機房、工業廠礦、民航、金融、證券等電源系統,如各種配電站、配電房、配電柜、交直流配電屏、開關箱以及其它各種重要且易遭受雷擊的設備。
■產品特點
● 雷電計數器(帶雷電計數器的防雷箱),準確記錄雷擊次數。
● 狀態指示燈,指示防雷箱工作狀態。
● 放電電流大,殘壓低。
● 使用范圍廣,ns級響應速度。
● 實現差模、共模全方位保護。
● 采用特殊沖擊熔片,可靠性高。
● 核心元件采用國際知名品牌,性能優越,使用壽命長。
● 內部設有溫控、限流電路,徹底避免火災發生。
● 節能、環保,安裝簡單、方便,無須特殊維護。
■技術參數
名稱 | 型號 | 規格 | 標稱放 電電流 In(kA, 8/20μs) | 最大放 電電流 Imax(kA, 8/20μs) | 電壓保 護水平 Up(kV) | 應用 等級 | 響應 時間 tA(ns) | 額定工 作電壓 Un(VAC) | 最大持 續工作 電壓 Uc(VAC) | 漏電流0.75U1mA (μA) | 工作 溫度 (℃) |
單相電源防雷箱 | LKX-B220/20 | 迷你型 | 10 | 20 | 1.5 | 第三級 | ≤25 | 220 | 385 | ≤20 | -40 ~ +85 |
LKX-B220/40 | 20 | 40 | 1.8 | 第二、三級 | |||||||
LKX-B220/60 | 30 | 60 | 2.1 | 第二級 | |||||||
LKX-B220/80 | 40 | 80 | 2.2 | 第一、二級 | |||||||
單相電源防雷箱 | LKX-B220/20 | 小尺寸 | 10 | 20 | 1.5 | 第三級 | ≤25 | 220 | 385 | ≤20 | -40 ~ +85 |
LKX-B220/40 | 20 | 40 | 1.8 | 第二、三級 | |||||||
LKX-B220/60 | 30 | 60 | 2.1 | 第二級 | |||||||
LKX-B220/80 | 40 | 80 | 2.2 | 第一、二級 | |||||||
單相電源防雷箱 | LKX-B220/20 | 中尺寸 | 10 | 20 | 1.5 | 第三級 | ≤25 | 220 | 385 | ≤20 | -40 ~ +85 |
LKX-B220/40 | 20 | 40 | 1.8 | 第二、三級 | |||||||
LKX-B220/60 | 30 | 60 | 2.1 | 第二級 | |||||||
LKX-B220/80 | 40 | 80 | 2.2 | 第一、二級 | |||||||
LKX-B220/120 | 60 | 120 | 2.6 | 第一、二級 | |||||||
LKX-B220/40 | C+D、中尺寸 | 20 | 40 | 1.2 | 第二、三級 | ||||||
LKX-B220/80 | B+C、中尺寸 | 40 | 80 | 1.7 | 第一、二級 | ||||||
單相電源防雷箱 | LKX-B220/20 | 翻蓋式 | 10 | 20 | 1.5 | 第三級 | ≤25 | 220 | 385 | ≤20 | -40 ~ +85 |
LKX-B220/40 | 20 | 40 | 1.8 | 第二、三級 | |||||||
LKX-B220/60 | 30 | 60 | 2.1 | 第二級 | |||||||
LKX-B220/80 | 40 | 80 | 2.2 | 第一、二級 | |||||||
LKX-B220/120 | 60 | 120 | 2.6 | 第一、二級 | |||||||
單相電源防雷箱 | LKX-B220/20 | 翻蓋式、 18模塊 | 10 | 20 | 1.5 | 第三級 | ≤25 | 220 | 385 | ≤20 | -40 ~ +85 |
LKX-B220/40 | 20 | 40 | 1.8 | 第二、三級 | |||||||
LKX-B220/60 | 30 | 60 | 2.1 | 第二級 | |||||||
LKX-B220/80 | 40 | 80 | 2.2 | 第一、二級 | |||||||
LKX-B220/80 | 翻蓋式、 36模塊 | 40 | 80 | 2.2 | 第一、二級 | ||||||
LKX-B220/120 | 60 | 120 | 2.6 | 第一、二級 | |||||||
單相電源防雷箱 | LKX-B220/40 | 數碼管、 小尺寸 | 20 | 40 | 1.8 | 第二、三級 | ≤25 | 220 | 385 | ≤20 | -40 ~ +85 |
LKX-B220/60 | 30 | 60 | 2.1 | 第二級 | |||||||
LKX-B220/80 | 40 | 80 | 2.2 | 第一、二級 | |||||||
單相電源防雷箱 | LKX-B220/40 | 數碼管、 中尺寸 | 20 | 40 | 1.8 | 第二、三級 | ≤25 | 220 | 385 | ≤20 | -40 ~ +85 |
LKX-B220/60 | 30 | 60 | 2.1 | 第二級 | |||||||
LKX-B220/80 | 40 | 80 | 2.2 | 第一、二級 | |||||||
LKX-B220/120 | 60 | 120 | 2.6 | 第一、二級 | |||||||
LKX-B220/40 | C+D、數碼管、中尺寸 | 20 | 40 | 1.2 | 第二、三級 | ||||||
LKX-B220/80 | B+C、數碼管、中尺寸 | 40 | 80 | 1.7 | 第一、二級 | ||||||
單相電源防雷箱 | LKX-B220/20 | 數碼管、 翻蓋式 | 10 | 20 | 1.5 | 第三級 | ≤25 | 220 | 385 | ≤20 | -40 ~ +85 |
LKX-B220/40 | 20 | 40 | 1.8 | 第二、三級 | |||||||
LKX-B220/60 | 30 | 60 | 2.1 | 第二級 | |||||||
LKX-B220/80 | 40 | 80 | 2.2 | 第一、二級 | |||||||
LKX-B220/120 | 60 | 120 | 2.6 | 第一、二級 | |||||||
單相電源防雷箱 | LKX-B220/20 | 數碼管、 翻蓋式、 18模塊 | 10 | 20 | 1.5 | 第三級 | ≤25 | 220 | 385 | ≤20 | -40 ~ +85 |
LKX-B220/40 | 20 | 40 | 1.8 | 第二、三級 | |||||||
LKX-B220/60 | 30 | 60 | 2.1 | 第二級 | |||||||
LKX-B220/80 | 40 | 80 | 2.2 | 第一、二級 | |||||||
LKX-B220/80 | 數碼管、 翻蓋式、 36模塊 | 40 | 80 | 2.2 | 第一、二級 | ||||||
LKX-B220/120 | 60 | 120 | 2.6 | 第一、二級 | |||||||
單相電源防雷箱 | LKX-B220/40 | 液晶屏、 中尺寸 | 20 | 40 | 1.8 | 第二、三級 | ≤25 | 220 | 385 | ≤20 | -40 ~ +85 |
LKX-B220/60 | 30 | 60 | 2.1 | 第二級 | |||||||
LKX-B220/80 | 40 | 80 | 2.2 | 第一、二級 | |||||||
LKX-B220/120 | 60 | 120 | 2.6 | 第一、二級 |
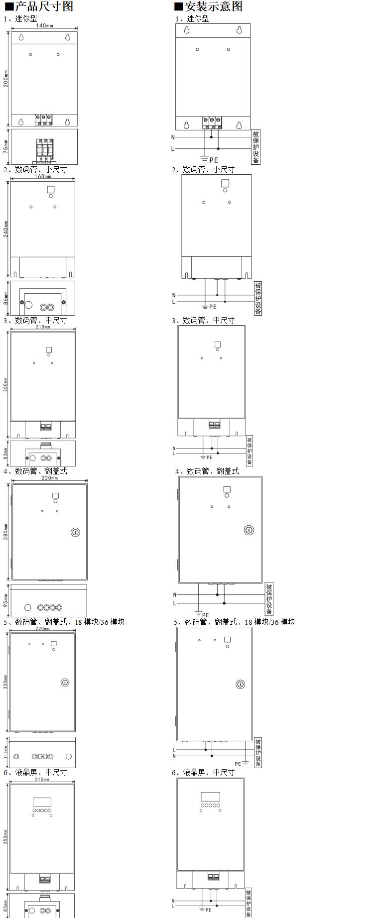
■安裝說明
● 安裝前必須切斷電源,嚴禁帶電操作。
● 防雷箱可懸掛在墻上或水平放置。
● 安裝時請根據安裝示意圖所示連接,其中L為相線,N為零線,PE為地線,切勿錯接。安裝完成后,合上自動斷路器(熔斷器)開關,檢查工作狀態是否正常。
● 防雷箱使用期間,應定期檢測并查看指示燈工作狀態:指示燈亮綠色,表示防雷箱電源及防雷正常;亮紅色,表示防雷箱已劣化,應及時維修或更換。
● 配有雷電計數器的防雷箱,其計數范圍為0~99,計數最小動作電流為1kA。
● 數碼管計數器的防雷箱:按“讀數”按鈕,窗口即顯示雷擊次數。20秒不操作,計數器即自動進入睡眠狀態。
● 液晶屏計數器的防雷箱:在睡眠狀態下按任意鍵進入待機界面,此時窗口顯示雷擊次數和當前日期、時間;待機界面下按“查詢”鍵進入查詢界面,此時窗口顯示最近一次雷擊及其對應的雷擊日期、時間,然后按“上翻”或“下翻”鍵可查詢歷史雷擊及其對應的雷擊日期、時間,再按“確認”鍵進入待機界面;待機界面下長按(按下時間超過1秒)“設置”鍵進入時間設置界面,可以對年、月、日、時、分、秒等日期和時間進行設置,此時可修改的數字開始閃爍,按“上翻”或“下翻”鍵可對閃爍的數字進行設置,按“設置”鍵可切換閃爍的數字(按年、月、日、時、分、秒循環切換),設置完成后按“確認”鍵進入待機界面。在進入時間設置或查詢界面時,20秒不操作即可自動返回待機界面,進入待機界面16秒不操作即可自動進入睡眠狀態。
● 連接線應采用不小于標準要求的多股銅線,且要求短、粗、直。
● 非專業人員請勿拆卸。

掃一掃咨詢微信客服